![]() |
Markus Fellman VD, Ansvarig föreståndare, Fastighetsmäklare AFM RFM, Offentligt köpvittne +358 (0)18 27306 |
|
Välkommen till en ljus och rymlig gavellägenhet i översta våningen inrymmande fyra rum och kök i hjärtat av Mariehamn – komplett med inglasad balkong med fint västerläge och även med en egen, rymlig varmgarageplats om cirka 15 m2 i källarplan som ingår i köpet.
Här bor ni lugnt och bekvämt med absoluta centrum med dess utbud av affärer och restauranger, bio m.m runt hörnet
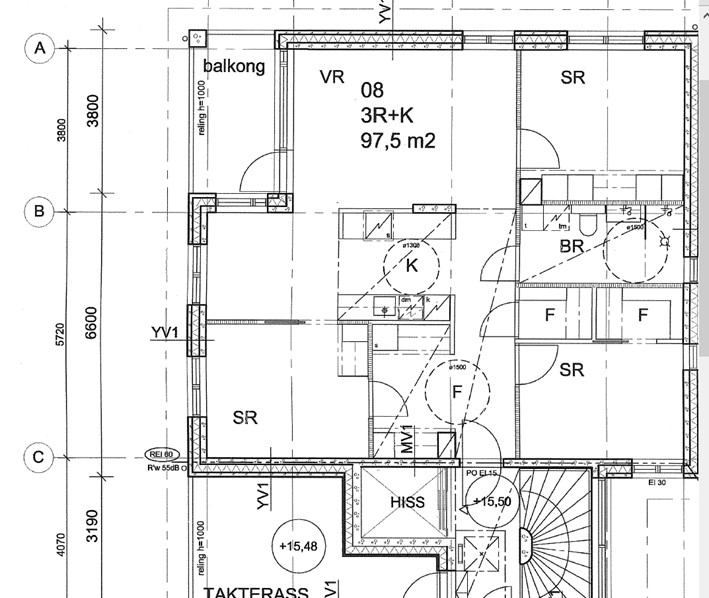
Generös yta om cirka 97,5 m² med en optimal planlösning. Lägenheten inrymmer entré, ett ljust kök med matplats, tre sovrum, ett väl tilltaget vardagsrum, badrum, två praktiska klädkammare som maximerar förvaringen samt en inglasad balkong med ett fint västerläge.
Inhemskt kök med vitvaror från Siemens i form utav kyl/frys, diskmaskin, integrerad mikrovågsugn, varmluftsugn, keramisk spishäll och fläkt.
Badrummet är helkaklat och försett med wc, vikbara duschdörrar, kommod med två lådor, spegel med belysning, ett högskåp, handdukstork och tvättmaskin.
Njut av en rymlig, inglasad balkong i vackert västerläge med fin kvällssol.
I priset ingår en eftertraktad bilplats i varmgarage samt ett eget varmförråd. Direktaccess från garaget till lägenheten genom hiss i huset. Garageplatsen är förberedd för installation av laddningsstation för elbil/hybrid.
Modern och energieffektiv uppvärmning via vattenburen fjärrvärme. Lägenheten har mekanisk ventilation med återvinning samt att ägaren har installerat en luftvärmepump för kylning sommartid.
Mycket förmånligt bolagsvederlag om endast 4,50 €/m² per månad för lägenheten och 3,15 €/m2 per månad för varmgarageplatsen (totalt 486 €/mån). I detta låga belopp ingår värme, vatten, avlopp, sopor, MCA, fastighetsförsäkring, bokföring, fastighetsförsäkring, fastighetsskatt, fastighetsskötsel, bokföring och disponent.
| Adress | Ålandsvägen 35 Bst 8, AX-22100 Mariehamn |
| Kommun | Mariehamn |
| Rum | 4 rum och kök |
| Yta | ca 97.5 m² |
| Byggnadsår | 2016 |
| Prisinformation | Utgångspris: 458 000 euro |
| Utgångspris | 458 000 € |
| Bolagsvederlag | 438,75 €/mån |
| Kostnader | Köpare erlägger en överlåtelseskatt som utgör 1,5 % av det skuldfria överlåtelsepriset samt 350 € för upprättandet av köpebrev och registring av ägandet i aktieboken. |
| Våning | 3/3 |
| Tillträde | Enligt överenskommelse |
| Bolag | Bostads Ab Ålandsgården i Mariehamn |
| Fastighetsskötsel | Sköts av fastighetsserviceföretag (Connys All Ab) |
| Disponent | Jan-Tore Thörnroos |
| Lägenhetsnummer | 8 |
| Beteckning | 478-3-13-15 |
| Uppvärmning | Fjärrvärme |
| Uteplats | Inglasad balkong med västerläge och gemensam, plattlagd innergård. |
| Hiss | Ja |
| Energiprestandaklass | E |
![]() |
![]() |
![]() |
![]() |
![]() |
![]() |
![]() |
![]() |
![]() |
![]() |
![]() |
![]() |
![]() |
![]() |
![]() |
![]() |
![]() |
![]() |
![]() |
![]() |
![]() |
![]() |
![]() |
